









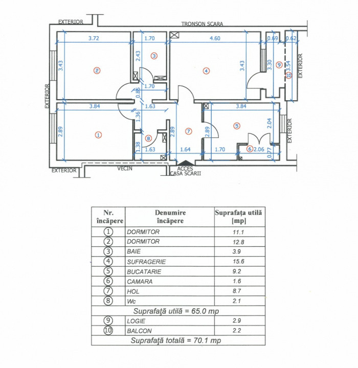
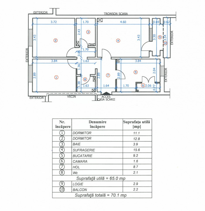
Vă propunem spre vânzare un apartament spațios cu 3 camere decomandate, situat în zona Milcov din Bacău, la etajul 4, ideal pentru o familie sau pentru investiție.
Locuința este bine compartimentată și dispune de bucatarie separată, două băi și balcon spațios, oferind confort și funcționalitate. Apartamentul este pregătit pentru renovare, pereții fiind rași până la placă, ceea ce facilitează începerea lucrărilor de amenajare și reduce o parte din costurile inițiale de renovare. Acest lucru oferă viitorilor proprietari libertatea de a-l amenaja complet după propriul gust.
Caracteristici și avantaje:
✔ geamuri termopan
✔ apă trasă separat
✔ proiect de gaz deja realizat
✔ încălzirea este prevazută pentru a fi instalată prin pardoseală(dar se poate opta și pentru incălzire cu calorifere)
✔ izolație exterioară
✔ acoperiș cu hidroizolație realizată recent, aflată în garanție
✔ locuri de parcare disponibile în proximitatea blocului
Apartamentul este situat într-o zonă liniștită, cu acces facil către magazine, farmacii, școli și alte puncte de interes. Se afla la 5 min de Insula de Agrement.
Pentru mai multe detalii sau programarea unei vizionări, nu ezitați să ne contactați.
Tamara Lupascu - 0754886299